329
Extension / Surélévation d’une maison
Type de projets
Année
Lieu
Extension - Rénovation - Surélévation
2024
Saint-Grégoire

Contexte
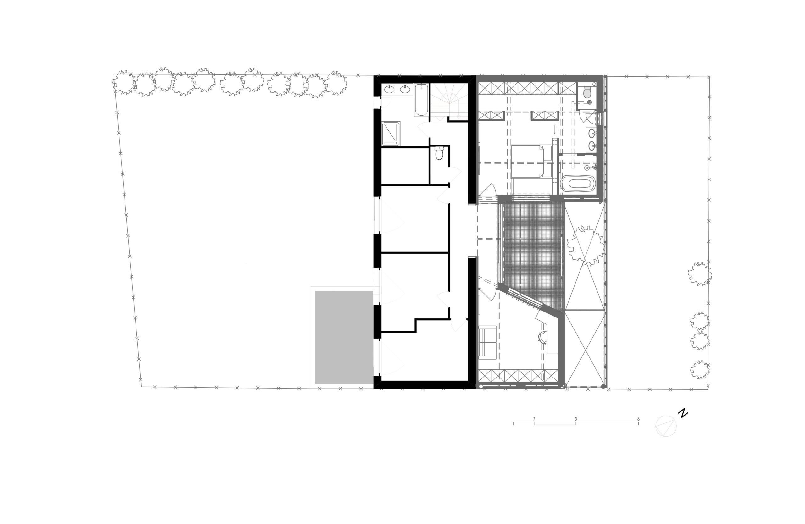
Cette extension d’une maison individuelle, implantée à Saint-Grégoire, s’affirme dans un environnement pavillonnaire grâce à son architecture résolument contemporaine.





Intervention
Son élément distinctif réside dans sa structure métallique, dont la façade ajourée en maille joue à la fois un rôle esthétique et fonctionnel. Installée en front de rue, elle filtre subtilement la lumière tout en préservant l’intimité des espaces situés à l’étage arrière.
Ce volume contemporain accueille un programme simple et élégant : une généreuse suite parentale et un bureau. Entre ces deux pièces, une terrasse en caillebotis crée une transition fluide et conviviale, renforçant le lien entre intérieur et extérieur.
